Ph: 027 478 0047 |   grant@totalbuild.co.nz

House & Land Package

Nero Plan 2a Torkar Road

Nero Plan 2a Torkar Road

Address:
2a Torkar Road Clarks Beach
Price:
$1,067,580
House Size:
159
Section Size:
654
No items found.

Clarks Beach

Situated 25 minutes west of Karaka, Clarks Beach renowned for a wide range of community facilities including a golf course, a small neighbour hood community centre with Restaurant, Cafe & takeaway, a yacht club, boat ramps, and bowling club.
Just a couple of minutes to Waiau Pa which has service center with Fuel Station, small Supermarket, Cafe & Hardware store with Gardening supplies.

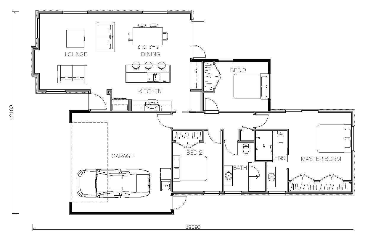
TOTALBUILD NERO DESIGN

3 Bedrooms
2 bathrooms
Open plan Living

DOWNLOAD THE DETAILS HERE

EXTERIOR

  • Color Steel Long-run  Roofing
  • White Brick with white mortar
  • Linea contrasting color Weatherboard

INTERIOR

  • Fully Tiled Bathrooms
  • 10mm Custom glass shower Doors
  • Hansa Tapware
  • Franklin Wall Hung Wood Veneer Vanities
  • Heating 2 x Heatpumps Living & Master Bed
  • Luxury Kitchen, Woodgrain Melamine Cabinetry
  • Engineered Stone Bench Tops
  • Smeg Appliances
  • Double Door Fridge Freezer with Icemaker
  • Carpet & Tile Floor Coverings
  • TV Arial & Sky Dish installed

GROUNDS

  • Colored concrete Driveway
  • Colored concrete Patio & Paths
  • Lawns
  • Clothesline
  • Mail Box Pillar Style
  • Fenced in Powdercoat Aluminium 1.2m high
    or Timber 1.8m high

Message us about this package:

Got a question about this House & Land Package?
Let us know how we can help...
Thank you! Your submission has been received!
Oops! Something went wrong while submitting the form.

Other House & Land Packages

Vela Plan 2 Torkar Road
House & Land - Selling NOW
This package is now SOLD
Nero Plan 2a Torkar Road
House & Land - Selling NOW
This package is now SOLD
Nero Plan Clarks Beach waterfront estate
House & Land - Selling NOW
This package is now SOLD

What others are saying:

"Practical and cutting edge"
NZ House & Garden Magazine
"Totalbuild Ltd. has a very high standard of finish"
John and Margaret Cullen
"Excellent communication and a friendly team of builders"
Ross & Julie McIvor
"If you are looking for an affordable quality home we would highly recommend Totalbuild Ltd."
Graham and Jenny Platts